Piękne mieszkanie z jeszcze piękniejszym panoramicznym widokiem na morze
Mamy przyjemność zaprezentować to wspaniałe mieszkanie na pierwszym piętrze, otoczone zielenią, z niesamowitym...
335.000€
Medulina
51500 Krk, Chorwacja
Na sprzedaż
265.000€









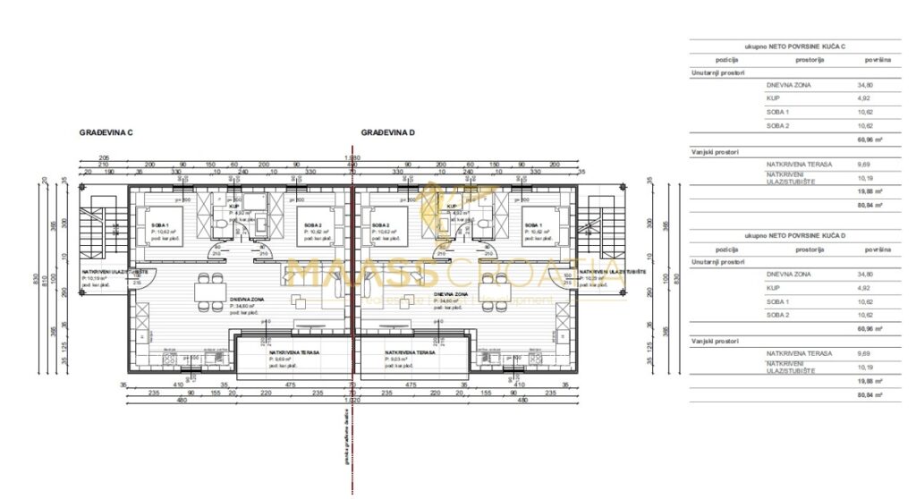
Mieszkania w budowie w pięknej lokalizacji w Čižići, 320 metrów pieszo od najbliższej plaży.
Cztery budynki mieszkalne składają się z parteru, pierwszego i pierwszego piętra z jedną jednostką mieszkalną na każdym piętrze.
Każde mieszkanie składa się z dwóch sypialni, łazienki, otwartej przestrzeni z kuchnią, jadalnią i salonem, a także zadaszonego tarasu.
Każde mieszkanie ma miejsce parkingowe na wspólnym dziedzińcu budynku.
Cena każdego mieszkania wynosi 265 000 euro.
Dostępne są:
Budynek A – mieszkanie na 1 piętrze 50,24 m2 + zadaszony taras 13,41 m2 i zadaszona klatka schodowa 10,19 m2
Budynek B – mieszkanie na 1 piętrze 53,74 m2 + zadaszony taras 15,08 m2 i zadaszona klatka schodowa 10,19 m2
– Mieszkanie na 2 piętrze 53,74 m2 + zadaszony taras 15,08 m2 i zadaszona klatka schodowa 10,19 m2
Budynek C – mieszkanie na parterze 60,96 m2 + zadaszony taras 9,69 m2 i zadaszona klatka schodowa 10,19 m2
– Mieszkanie na 1 piętrze 60,96 m2 + zadaszony taras 9,69 m2 i zadaszona klatka schodowa 10,19 m2
– Mieszkanie na 2 piętrze 60,96 m2 + zadaszony taras 9,69 m2 i zadaszona klatka schodowa 10,19 m2
Budynek C – mieszkanie na parterze 60,96 m2 + zadaszony taras 9,69 m2 i zadaszona klatka schodowa 10,19 m2
– Mieszkanie na 1 piętrze 60,96 m2 + zadaszony taras 9,69 m2 i zadaszona klatka schodowa 10,19 m2
– Mieszkanie na 2 piętrze 60,96 m2 + zadaszony taras 9,69 m2 i zadaszona klatka schodowa 10,19 m2
Loggia
Taras
Drzwi antywłamaniowe
Dostęp do Internetu
Plastikowe okna i drzwi
Zadbany ogród
Widok na morze
Klimatyzacja
Woda Kanalizacja Prąd Telefon DSL/Internet
Nowy budynek
Orientacja południowo-wschodnia
Parking





Mamy przyjemność zaprezentować to wspaniałe mieszkanie na pierwszym piętrze, otoczone zielenią, z niesamowitym...
335.000€





Lokalizacja: Makarska Wybudowany: 2016 Centrum miasta: 1 km Morze: 0,5 km Powierzchnia wewnętrzna: 350 m2 Wielkość...
950.000€
Dom wakacyjny z 4 mieszkaniami i widokiem na morze
Owning a home is a keystone of wealth… both financial affluence and emotional security.
Suze Orman