Piękny dom w zabudowie bliźniaczej z widokiem na morze w spokojnej okolicy
Dom w zabudowie bliźniaczej na trzech kondygnacjach: parter + 1 piętro + wysoki strych. Całkowita powierzchnia...
399.000€
Vodice
22202 Primosten, Chorwacja
Na sprzedaż
1.600.000€




Willa oferuje spektakularny panoramiczny widok na morze i Primošten.
Jest obecnie w budowie i jest otoczona naturą, z dala od zgiełku miasta.
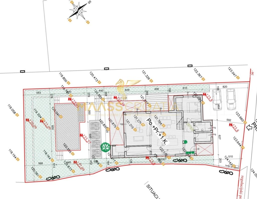
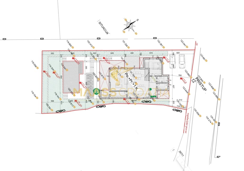
Położona na działce o powierzchni 600 metrów kwadratowych willa została zaprojektowana z nowoczesną architekturą, czystymi liniami, przestronnymi tarasami i starannie dobranymi materiałami.
Dzięki trzykondygnacyjnej konstrukcji willa ma powierzchnię mieszkalną 225,21 m² i oferuje mnóstwo miejsca do wygodnego życia.
W piwnicy znajduje się przestronny schowek i pomieszczenie na sprzęt basenowy, a parter i pierwsze piętro są zarezerwowane dla codziennego życia i relaksu.
Przestronny teren zewnętrzny obejmuje duży parking dla kilku pojazdów i basen o powierzchni 40 m2 otoczony miejscem do opalania, tworząc idealne miejsce do relaksu i spotkań towarzyskich na świeżym powietrzu.
Przestronne wnętrze willi obejmuje główne wejście, przedpokój, pralnię, jadalnię, salon, kuchnię z wyjściem na taras z letnią kuchnią oraz sypialnię z łazienką.
Na pierwszym piętrze znajdują się trzy przestronne sypialnie, każda z własną łazienką i garderobą.
Chociaż willa znajduje się w cichej okolicy, jest tylko 1900 metrów od plaży i 2400 metrów od centrum miasta.
Planowana data wprowadzenia się to lato 2025 roku.
Primosten to piękne, małe i urokliwe miasteczko położone między Rogoznicą a Szybenikiem.





Dom w zabudowie bliźniaczej na trzech kondygnacjach: parter + 1 piętro + wysoki strych. Całkowita powierzchnia...
399.000€





Lokalizacja: Vodice Zbudowany: 2005 Odnowiony: 2017 Centrum miasta: 2 km Odległość do lotniska: 65 km Powierzchnia...
2.400.000€
550 metrów od plaży: trzy wolnostojące domy z ogrodem
Owning a home is a keystone of wealth… both financial affluence and emotional security.
Suze Orman